The Problem With Today’s Most Popular Kitchen Layout
- Heather West

- Mar 19
- 8 min read
I’ve always loved walking model homes. Sometimes it’s for creative inspiration, and sometimes it’s just to see what’s out there. Lately, I've walked through a lot of model homes.
And one thing has stood out to me over and over again: almost every kitchen looks exactly the same.
Now, this may be where I get a little controversial, and that’s okay.
My design philosophy has always been simple: if you love it, do it.
It’s your home, not mine. At the end of the day, whether you’ve hired me as your interior designer or worked with someone else, we don’t live there, you do. So whatever is being designed into your home should be something you love and something that feels right to you. And if it doesn’t, say something.
Designers should absolutely bring creative ideas to the table and maybe even push your boundaries a little. But not so far that your home no longer feels like yours.
With that said, let’s talk about kitchen layout.
I’ve spent over 10 years designing kitchens, so this really stood out to me as we walked through all of these homes. We toured close to 20 model homes, and all but one had basically the exact same kitchen layout.
You know the one.
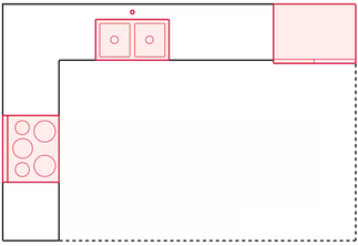
It’s open concept, with a wall of cabinets or an L-shape paired with an island. The range or cooktop is on the back wall, and directly across from it is the sink, usually with the dishwasher right next to it. Apparently every builder decided this is what people want and just copy-pasted it over and over again.
Honestly, I’m tired of seeing it.
But more than that, I keep asking myself: where is the uniqueness in a home? Do we all need to live the same way and have the exact same design?
And even more importantly, is this actually functional?
Because if you have more than one person in the kitchen during meal prep, this layout often does not work well.
Why This Kitchen Layout Doesn’t Work for Every Family
I design for function first. And right now, we’re renting a home while we’re in the middle of a housing transition. And guess what? We have this exact kitchen layout too.
Every night, my husband and I feel the frustration of it.
Usually one of us is at the stove cooking dinner, and the other is at the sink, emptying the dishwasher, filling the dishwasher and cleaning up. When the dishwasher door is down, it creates a blockage. When someone is standing at the stove, it creates a blockage. When someone is at the sink, it creates a blockage.
We are constantly doing this little dance around each other, and it’s aggravating because it simply isn’t functional for the way we live.
That is one of the biggest issues I have with this open-concept kitchen layout: it may look beautiful, but beauty alone does not make something work well.
My other issue is that the island always looks messy in our house. There are usually dishes waiting to be washed or put away, and yes, of course we could do those things immediately, but we don’t. That’s just not our lifestyle. So the mess ends up sitting right in the middle of the kitchen, fully visible.
And then there’s the sink itself.
When you’re washing something large, water tends to overspray onto the island. I really miss having a backsplash behind the sink. What once felt like a beautiful, modern design now feels like one that doesn’t support our everyday life.
For our family, it simply isn’t the most functional kitchen design.
And the frustrating part is that when you look at new homes, this often feels like the only option being sold right now.
Some people may love it, and that’s perfectly fine. But some people absolutely won’t. And right now, good luck finding something different.
Design for Your Real Life in the Kitchen
Once this layout is built, it can be very difficult and expensive to change.
I’ve looked over the kitchen we’re living with several times, thinking about how I would redesign it if I could. But because the layout is so open, there are limited options. And if you want to move the sink, you’re likely talking about tearing up flooring, jackhammering the slab, relocating plumbing, and taking on a very costly renovation.
That’s why, when you’re building a new home or remodeling a kitchen, it’s so important to think through the pros and cons of the layout before everything is finalized.
How do you cook?
How many people are usually in the kitchen at once?
Do you want the sink in the island?
Do you mind dishes and clutter being visible from the living space?
Do you need more separation between prep, cooking, and cleanup zones?
These are the kinds of questions that matter. A kitchen should not just look good in photos or in a model home. It should support the way you actually live every day.
And honestly, having someone help you work through those decisions before construction begins is even better.
Common Kitchen Layouts to Consider
There is not just one “right” kitchen layout. There are several, and each has its pros and cons depending on the home and the family using it.
The Open-Concept Kitchen
This is the most popular layout right now: a large L-shaped or one-wall kitchen with an island facing the dining area or living room. Because there are so few walls, appliance placement can be limited, which is why the sink and dishwasher often end up in the island. This layout could function better if the range or cooktop were not directly behind the sink, or if the walkway between the two were wider than the typical 42 inches, closer to 48 to 52 inches depending on the overall kitchen design. Ideally, locating the sink somewhere else can be even better. That gives you a more open working surface and helps reduce the splashing issue.
The U-Shaped Kitchen
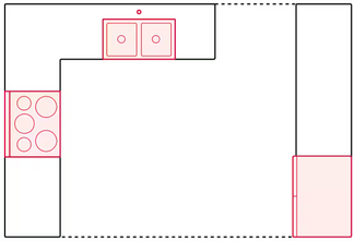
This layout uses three sides to create a U-shape. The third side can also be a peninsula rather than a full wall, which gives the kitchen a more open feeling.
An island can sometimes be added if the kitchen is large enough. This layout can create dead corners, so it’s important to design those thoughtfully. But it also creates a strong working triangle between the major appliances and can be especially nice when you can place a window above the sink.
The L-Shaped Kitchen
In this kitchen layout, cabinets are placed on two adjoining walls to form an L-shape.
It keeps the kitchen feeling open while still providing some separation from the rest of the space. Sometimes there is a small separate wall opposite the kitchen that holds the refrigerator or additional storage, creating something close to a broken U-shape.
An island can be added if space allows, but it doesn’t always have to be.
The G-Shaped Kitchen
This is an extension of the U-shaped kitchen, with a peninsula extending from one side.
It often creates more seating opportunities with barstools or counter stools and can work well for larger families or homes that need more counter space. This layout usually requires a larger footprint and is sometimes seen in older homes.
The Galley Kitchen
This layout has two parallel runs of cabinetry facing each other.
Some people feel galley kitchens are too closed off, and they can feel cramped if there isn’t enough walkway space. But they can also be incredibly efficient when designed well. You’ll often see this style in older or historic homes.
The One-Wall Kitchen
This layout places everything along one wall.
It’s often paired with an eating area or living space opposite it. While it can work in certain homes, it’s usually not the most efficient use of space, doesn’t offer much counter area, and can make the relationship between appliances less functional.
You Don’t Have to Choose What Everyone Else Is Choosing
That’s really the heart of what I want to say.
Just because a layout is popular doesn’t mean it’s right for you.
Just because it’s what every builder is showing doesn’t mean it’s the best choice for your lifestyle.
And just because something looks clean and beautiful in a staged model home doesn’t mean it will function well once real life moves in.
If you’re building a home or planning a kitchen remodel, take the time to think beyond what’s trending. Think about how your family actually lives. Think about what frustrates you in your current kitchen. Think about what would make daily life easier, smoother, and more enjoyable.
A functional kitchen design should support your routines, not fight against them.
Living in an area where most homes were built in the last 20 years has made me miss the variety and creativity of older homes. The detailed trim work. The built-in cabinetry. The character. The individuality of the kitchens.
I think that’s part of why I’m so passionate about this.
I want to bring back the uniqueness of homes.
The uniqueness of style.
And the boldness of design.
Because good design should never feel copy-pasted. It should feel personal.
FAQ's:
What is the most functional kitchen layout? The most functional kitchen layout depends on your home, your family, and how you use the space every day. The best layout supports your routines, allows for good flow, and makes cooking, prep, and cleanup easier, not more frustrating.
Are open-concept kitchens still popular? Yes, open-concept kitchens are still very popular, especially in newer homes. Many homeowners love the openness, natural light, and connection to surrounding living spaces. But that does not mean they are the best fit for every family.
What are the downsides of an open-concept kitchen? Open-concept kitchens can create traffic flow problems, keep messes visible, make noise travel more easily, and require the kitchen and living spaces to visually work together. In some layouts, they can also be less functional for families with multiple people using the kitchen at once.
Is a sink in the island a good idea? A sink in the island can work, but it is not always the best choice. It can reduce uninterrupted prep space, create splashing issues, and make dishes or clutter more visible from the rest of the home.
Why do so many new homes have the same kitchen layout? Many builders use similar kitchen layouts because open-concept floor plans are popular, efficient to build, and broadly appealing to buyers. In these layouts, appliance and plumbing placement often become repetitive.
Can you change a kitchen layout later? Yes, but changing a kitchen layout after construction can be expensive. Moving plumbing, appliances, cabinetry, and flooring adds complexity and cost, which is why it is so important to make thoughtful layout decisions early.
What should I consider before choosing a kitchen layout? Think about how your family actually uses the kitchen. Consider how many people are in the space at one time, where you want prep space, whether you want the sink in the island, and how much openness or separation feels best for your lifestyle.
Author Bio:
Heather West is the founder of Designs by Heather, a Saint Johns / Jacksonville area residential interior designer that helps busy, established homeowners achieve stunning, personalized, one room to full home transformations.

Known for her bold, moody, charming designs, Heather brings 20 years of experience, winning Best of Florida, and a degree in Interior Design to each project. Whether she’s providing her Curated Home Package, or Room by Room Package, her work reflects her passion, and desire to help her clients break away from builder beige.
Heather and her work have been featured in Best of Florida 2025, Saint Johns Woman's Magazine, Voyage Jacksonville, Rentblog, and Redfin. When she’s not working, you’ll find her spending time with family, reading or traveling (she loves to explore amazing hotel lobbies).



















Comments